
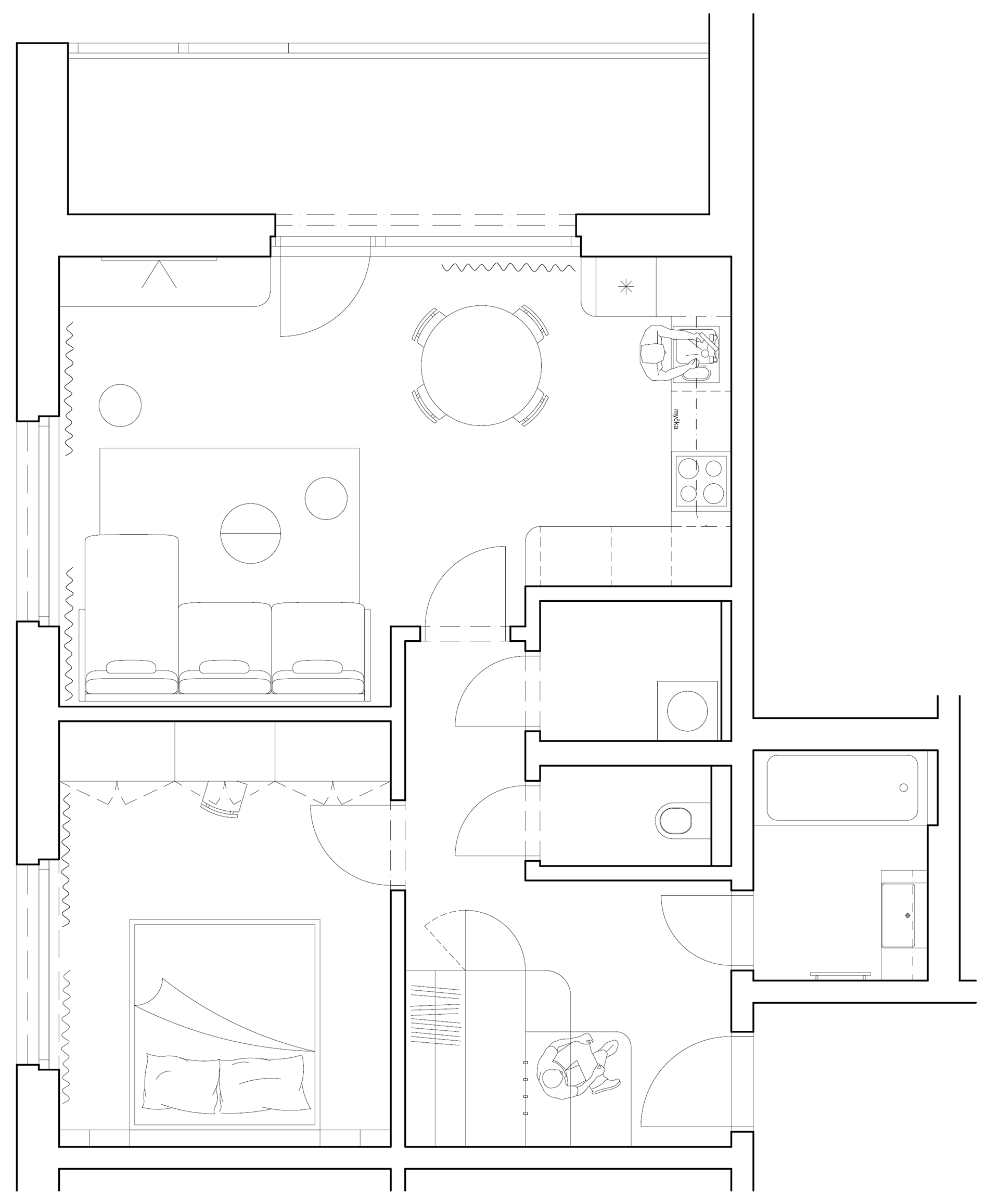
Naším cílem bylo vytvořit interiér bytu na pronájem v srdci Olomouce, který spojuje optimální poměr ceny a výkonu s moderním designem. Interiér bytu je laděn do světlých odstínů béžové a světlého přírodního dřeva s akcenty v pastelových barvách.
Klíčovým prvkem je, odlišit se od trhu a nabídnout řešení odpovídající standardům vyšší střední třídy. Interiér přinese přidanou hodnotu v podobě chytrého využití prostoru a estetické originality, která kombinuje funkčnost a nadčasovost.



Princip použití barev na solitérní prvky

Práce s nikami a policemi

Barevný akcent













Autorky: Barbora Císařová, Adéla Pagáčová
Lokace: Olomouc, Česká republika
Rok: 2025
Lokace: Olomouc, Česká republika
Rok: 2025